TIF Works
Tax Increment Financing
TIF is Not a Four Letter Word
Tax Increment Financing is a very effective but controversial method to help redevelop older areas within a city. It is poorly understood and often unfairly criticized. TIF is not a four letter word.
What is Tax Increment Financing?
The Illinois Tax Increment Financing Association http://www.illinois-tif.com/ provides an excellent explanation of TIF. Tax Increment Financing helps communities revitalize older and declining neighborhoods. A District is created following the requirements of the law. The new property tax generated in the new District can be used to assist development in the district, helping the area revitalize.
Case Studies
The City of Peoria has developed 10 TIF Districts. The value of these areas was initially very low. The TIF helped these areas redevelop, and the value of these areas has gone up on average 23% each year, much faster than the city as a whole. Nearby areas without the TIF have had little improvement in value. And of course the redeveloped areas created jobs and vitality.
Depending on the rate of taxation, taxes paid by the new development may be as much as or more than one half of the fair market value of new and redeveloped buildings over the 23 year life of the TIF. The city can provide some or all of that increment back to the developer to help make the project a reality.
TIF Districts incent redevelopers, spurring revitalization of older neighborhoods and increasing jobs. Cities have stimulated substantial new investment through public/private partnerships.
The Illinois Medical Clinic to the right received a 4 million dollar TIF incentive to construct in downtown. The funds helped the developer pay for a parking deck. But for the TIF incentive, this great job and tax producing building would have gone to suburban areas. Instead it helps to revitalize the older central city.
Tax Increment Financing is controversial. But there is no question that it is a great way to build tax base and jobs. The Southtown TIF is the oldest TIF in the City of Peoria and one of the oldest in Illinois. The graph shows that the value of real estate within the TIF grew much faster than the City and School District 150. In 2013, the TIF will be completed, and the tax revenues will go to all the local governments.
The City of Peoria created two new TIF’s in 2007. The areas were very blighted, and growth of jobs and tax base in the areas lagged far behind the remainder of the city.
The chart and graph shows the performance of the two new TIF’s compared to the entire city and the school district. The two new TIF’s have grown much faster than their parent taxing bodies.
Village of Saunemon
TIF is effective in large cities and small villages. The Village of Saunemon created a TIF to assist the development of a gas station and convenience mart. Residents had previously needed to travel a substantial distance to purchase gas and convenience items. The TIF enabled the Village to recruit a developer to bring these needed services to the community,
We believe these numbers support the continued use of Tax Increment Financing. We want our older neighborhoods to thrive and improve, and TIF is one of the best ways to help that process.
More info at:
Illinois Tax Increment Financing Association http://www.illinois-tif.com/
TIF Illinois http://www.tifillinois.blogspot.com/
City of Peoria http://peoriatif.blogspot.com/
Warehouse District http://warehousedistrict.blogspot.com/
Beth Ruyle is a partner in the planning and economic development consulting firm Ruyle Hullinger and Associates. She was the Executive Vice President of Ehlers and Associates, Executive Director of the South Suburban Mayors and Managers Association for 22 years, and a City Planner with the Atlanta Regional Commission. She can be contacted at
309 966 1616
Bethruyle@gmail.com
http://Bethruyle.com
Craig Hullinger AICP is a partner in the planning and economic development consulting firm Ruyle Hullinger and Associates. He was formerly the Director of Economic Development for Peoria, Village Manager of Olympia Fields, University Park and Minooka, Planning Director for Will County, and a Colonel in the Marine Corps Reserve. He can be reached at
309 634 5557
craighullinger@gmail.com
http://craighullinger.com

TIF (Tax Increment Financing) Works


The Partners of Ruyle Hullinger have completed over 50 Redevelopment Plans with Tax Increment Finance (TIF) Districts and District Amendments.
http://ruhu12.com/

EXAMPLES
TIF PLAYS IN PEORIA
The photos show existing and proposed redevelopments in TIF's in Peoria that took place in the past three years. The consulting team worked with City staff, Camiros, and the City Council to iniate and complete the redevelopment plans for three tax increment financing districts approved in 2007-2008. A total of eighteen (18) buildings have been approved for development or redevelopment in the three new and one existing TIF’s.

Total investment in the buildings will be approximately $178,000,000, creating over 1,000 jobs.
This during the “Great Recession”.
And there are many more buildings in the works.
0 comments
Hotel and Convention Center TIFs
The consulting team worked with city staff and consultants to initiate and complete redevelopment plans to bring new convention center hotels to the communities of Peoria and Tinley Park. The cities used the TIF to pay for improvements to incent the redevelopment of the hotel and convention center. The consultants also initiated successful developer recruitment efforts, and helped the city negotiate the complex agreements required to complete the hotels.
(med).jpg)
Downtown hotels and other hospitality industry business struggle to compete with quality new developments. A City can choose to compete or not to compete. A Tax Increment Financing District can assist existing and new businesses invest, improve, and expand.

Hospitality Improvement Zone Peoria Illinois (HIZ) TIF
The City of Peoria has a quality convention center. But a new attached hotel is a requirement for the convention center to compete for conferences and conventions.

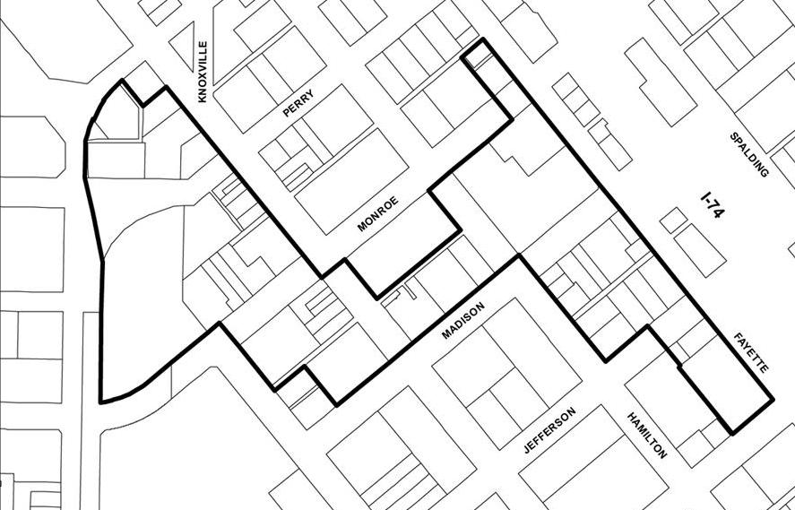
In 2008 the City created a Hospitality Improvement Zone (HIZ) Tax Increment Financing District (TIF) and a Business Development District (BDD). City staff worked with Camiros to conduct the property and building surveys that determined that the area qualified for the TIF and BDD. The TIF captures the new property tax that will be generated by the new hotel improvements over the next 23 years, and puts part of those funds back into the development. The BDD enables the City to pass a new hotel tax and a new sales tax of up to 1% to put back into the redevelopment. The maps below show the boundaries of the TIF and BDD, and the illustrations depict the proposed hotel improvement.
More info at:
http://hospitalityimprovementzone.blogspot.com/
http://peoriatif.blogspot.com/
http://hotelpeoria.blogspot.com/
Hotel and Convention Center Redevelopment Tinley Park, Illinois

Tinley Park, Illinois

The consulting team worked with the Village of Tinley Park to create the incentive programs for the development. The consulting team recruited the successful developer and helped negotiate the complex redevelopment agreement. The TIF paid for the land acquisition, infrastructure, and construction of the Convention Center. This incentive made it possible for the developer to construct the hotel. The development has been very successful, and is located at I-80 and Harlem (Route 43) in Tinley Park, Illinois.
TIF is Not a Four Letter Word
Tax Increment Financing is a very effective but controversial method to help redevelop older areas within a city. It is poorly understood and often unfairly criticized. TIF is not a four letter word.
What is Tax Increment Financing?
The Illinois Tax Increment Financing Association http://www.illinois-tif.com/ provides an excellent explanation of TIF. Tax Increment Financing helps communities revitalize older and declining neighborhoods. A District is created following the requirements of the law. The new property tax generated in the new District can be used to assist development in the district, helping the area revitalize.
Case Studies
The City of Peoria has developed 10 TIF Districts. The value of these areas was initially very low. The TIF helped these areas redevelop, and the value of these areas has gone up on average 23% each year, much faster than the city as a whole. Nearby areas without the TIF have had little improvement in value. And of course the redeveloped areas created jobs and vitality.
Depending on the rate of taxation, taxes paid by the new development may be as much as or more than one half of the fair market value of new and redeveloped buildings over the 23 year life of the TIF. The city can provide some or all of that increment back to the developer to help make the project a reality.
TIF Districts incent redevelopers, spurring revitalization of older neighborhoods and increasing jobs. Cities have stimulated substantial new investment through public/private partnerships.
The Illinois Medical Clinic to the right received a 4 million dollar TIF incentive to construct in downtown. The funds helped the developer pay for a parking deck. But for the TIF incentive, this great job and tax producing building would have gone to suburban areas. Instead it helps to revitalize the older central city.
Tax Increment Financing is controversial. But there is no question that it is a great way to build tax base and jobs. The Southtown TIF is the oldest TIF in the City of Peoria and one of the oldest in Illinois. The graph shows that the value of real estate within the TIF grew much faster than the City and School District 150. In 2013, the TIF will be completed, and the tax revenues will go to all the local governments.
The City of Peoria created two new TIF’s in 2007. The areas were very blighted, and growth of jobs and tax base in the areas lagged far behind the remainder of the city.
The chart and graph shows the performance of the two new TIF’s compared to the entire city and the school district. The two new TIF’s have grown much faster than their parent taxing bodies.
Village of Saunemon
TIF is effective in large cities and small villages. The Village of Saunemon created a TIF to assist the development of a gas station and convenience mart. Residents had previously needed to travel a substantial distance to purchase gas and convenience items. The TIF enabled the Village to recruit a developer to bring these needed services to the community,
We believe these numbers support the continued use of Tax Increment Financing. We want our older neighborhoods to thrive and improve, and TIF is one of the best ways to help that process.
More info at:
Illinois Tax Increment Financing Association http://www.illinois-tif.com/
TIF Illinois http://www.tifillinois.blogspot.com/
City of Peoria http://peoriatif.blogspot.com/
Warehouse District http://warehousedistrict.blogspot.com/
Beth Ruyle is a partner in the planning and economic development consulting firm Ruyle Hullinger and Associates. She was the Executive Vice President of Ehlers and Associates, Executive Director of the South Suburban Mayors and Managers Association for 22 years, and a City Planner with the Atlanta Regional Commission. She can be contacted at
309 966 1616
Bethruyle@gmail.com
http://Bethruyle.com
Craig Hullinger AICP is a partner in the planning and economic development consulting firm Ruyle Hullinger and Associates. He was formerly the Director of Economic Development for Peoria, Village Manager of Olympia Fields, University Park and Minooka, Planning Director for Will County, and a Colonel in the Marine Corps Reserve. He can be reached at
309 634 5557
craighullinger@gmail.com
http://craighullinger.com
TIF (Tax Increment Financing) Works


The Partners of Ruyle Hullinger have completed over 50 Redevelopment Plans with Tax Increment Finance (TIF) Districts and District Amendments.
http://ruhu12.com/
EXAMPLES
TIF PLAYS IN PEORIA
The photos show existing and proposed redevelopments in TIF's in Peoria that took place in the past three years. The consulting team worked with City staff, Camiros, and the City Council to iniate and complete the redevelopment plans for three tax increment financing districts approved in 2007-2008. A total of eighteen (18) buildings have been approved for development or redevelopment in the three new and one existing TIF’s.
Total investment in the buildings will be approximately $178,000,000, creating over 1,000 jobs.
This during the “Great Recession”.
And there are many more buildings in the works.
0 comments
Hotel and Convention Center TIFs
The consulting team worked with city staff and consultants to initiate and complete redevelopment plans to bring new convention center hotels to the communities of Peoria and Tinley Park. The cities used the TIF to pay for improvements to incent the redevelopment of the hotel and convention center. The consultants also initiated successful developer recruitment efforts, and helped the city negotiate the complex agreements required to complete the hotels.(med).jpg)
Downtown hotels and other hospitality industry business struggle to compete with quality new developments. A City can choose to compete or not to compete. A Tax Increment Financing District can assist existing and new businesses invest, improve, and expand.Hospitality Improvement Zone Peoria Illinois (HIZ) TIF
The City of Peoria has a quality convention center. But a new attached hotel is a requirement for the convention center to compete for conferences and conventions.

In 2008 the City created a Hospitality Improvement Zone (HIZ) Tax Increment Financing District (TIF) and a Business Development District (BDD). City staff worked with Camiros to conduct the property and building surveys that determined that the area qualified for the TIF and BDD. The TIF captures the new property tax that will be generated by the new hotel improvements over the next 23 years, and puts part of those funds back into the development. The BDD enables the City to pass a new hotel tax and a new sales tax of up to 1% to put back into the redevelopment. The maps below show the boundaries of the TIF and BDD, and the illustrations depict the proposed hotel improvement.
More info at:
http://hospitalityimprovementzone.blogspot.com/
http://peoriatif.blogspot.com/
http://hotelpeoria.blogspot.com/
Hotel and Convention Center Redevelopment Tinley Park, Illinois

Tinley Park, Illinois

The consulting team worked with the Village of Tinley Park to create the incentive programs for the development. The consulting team recruited the successful developer and helped negotiate the complex redevelopment agreement. The TIF paid for the land acquisition, infrastructure, and construction of the Convention Center. This incentive made it possible for the developer to construct the hotel. The development has been very successful, and is located at I-80 and Harlem (Route 43) in Tinley Park, Illinois.